Bồn cầu Washlet TOTO CW992VA nắp thông minh TCF992WA
- Thương hiệu: Thiết bị vệ sinh TOTO
- Tên sản phẩm: Bồn Cầu Điện Tử NEOREST XH I
- Bộ sưu tập: Neorest
- Hệ thống xả: Tornado Siphon Jet, 2 nút nhấn
- Lượng nước xả: 4.8/3L
- Thiết kế: Thân dài
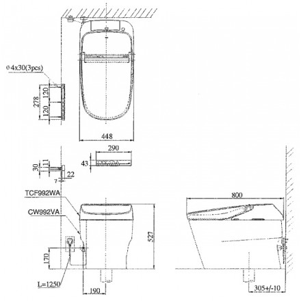
- Tâm xả: 305mm
- Kích thước: 720 x 540 x 650 mm
- Áp lực nước: 0.05 MPa-0.75 MPa
- Màu sắc: Trắng
- Bao gồm: Thân cầu CW992VA (sx Nhật), nắp rửa điện tử TCF992WA (sx Malaysia) và van khoá, gioăng đế
Tính năng bàn cầu Washlet TOTO CW992/TCF992WA nắp rửa thông minh
- Bồn cầu thông minh TOTO CW992VA/TCF992WA được thiết kế sang trọng, hiện đại, nắp Washlet tự động đóng mở
- Nắp điện tử thông minh TCF992WA (220V) có chức năng rửa tự động, chế độ sấy khô, sưởi ấm khi ngồi (có thể điều chỉnh nhiệt độ)
- Vòi rửa tự động đa chế độ với 8 chức năng: rửa trước, rửa sau, massage bằng dao động vòi rửa, massage theo nhịp hay điều chỉnh chế độ nước đem lại trải nghiệm êm ái
- Nắp tự động đóng mở khi cần sử dụng
- Bảng điều chỉnh từ xa tối tân
- Tự động phun sương Ewater làm sạch lòng cầu, giúp ngăn vi khuẩn
- Công nghệ men sứ CeFiONtect hiện đại, độc đáo nhằm ngăn vi khuẩn, chất bẩn bám vào bề mặt bồn cầu
- Thiết kế xả trực tiếp không gây ồn
- Thiết kế thân kính, vành kính, tiện lợi cho vệ sinh hàng ngày
- Đơn giản, dễ lắp đặt, dễ sử dụng
Bản vẽ kỹ thuật bồn cầu thông minh TOTO CW992/TCF992WA

Bản vẽ chi tiết bồn cầu thông minh TOTO CW992/TCF992WA
