Bồn cầu TOTO CS818DW6 hai khối nắp rửa Washlet
- Thương hiệu: Thiết bị vệ sinh TOTO
- Hệ thống xả: Siphon, 2 nút nhấn
- Lượng nước xả: 4.8/3L
- Thiết kế: Thân dài
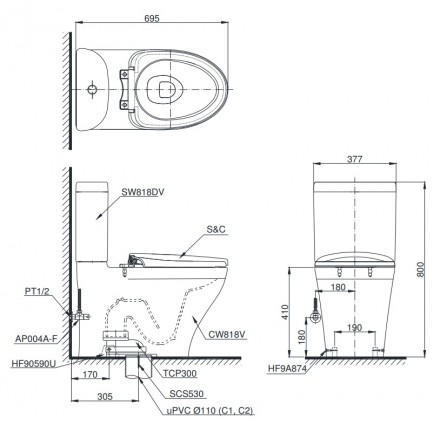
- Tâm xả: 305mm
- Kích thước: 695 x 377 x 800 mm
- Áp lực nước: 0.05 MPa-0.75 MPa
- Màu sắc: Trắng
- Bao gồm: Thân cầu C818 (sx Việt Nam), két nước S818N (sx Việt Nam), nắp rửa điện tử TCF6531Z (sx Malaysia) và van khoá, gioăng đế
Tính năng bàn cầu hai khối TOTO CS818DW6 nắp rửa thông minh
- Bồn cầu thông minh TOTO CS818DW6 được thiết kế sang trọng, hiện đại, nắp rửa thông minh Washlet TCF6531Z
- Nắp điện tử thông minh TCF6531Z (220V) có chức năng rửa tự động, chế độ sấy khô, sưởi ấm khi ngồi (có thể điều chỉnh nhiệt độ)
- Vòi rửa tự động đa chế độ với 8 chức năng: rửa trước, rửa sau, massage bằng dao động vòi rửa, massage theo nhịp hay điều chỉnh chế độ nước đem lại trải nghiệm êm ái
- Nắp tự động đóng mở khi cần sử dụng
- Bảng điều chỉnh từ xa tối tân
- Tự động phun sương Ewater làm sạch lòng cầu, giúp ngăn vi khuẩn
- Công nghệ men sứ hiện đại, độc đáo nhằm ngăn vi khuẩn, chất bẩn bám vào bề mặt bồn cầu
- Bồn cầu hai khối TOTO đơn giản, dễ lắp đặt, dễ sử dụng
Bản vẽ kỹ thuật bàn cầu TOTO CS818DW6 nắp rửa tự động
